Appartamento in villa bifamigliare San Vito (RN)
€ 230.000
Rimini, zona Torre Pedrera
Dettagli
Contratto Vendita
Rif AU_SV_PICbis
Prezzo € 230.000
Provincia Rimini
Comune Rimini
Zona Torre Pedrera
Indirizzo Via San Vito 48A">
Vani 5
Camere 3
Bagni 2
Classe energetica
F (DL 192/2005)
EPI 175 kwh/m2 anno
Riscaldamento autonomo
Condizioni abitabile
Cucina abitabile
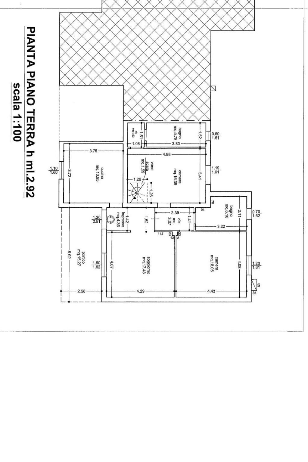
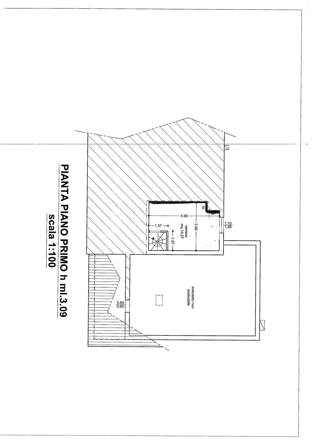
Consistenze
| Descrizione | Superficie | Sup. comm. |
|---|---|---|
| Principali | ||
| Immobile - piano terra | 105 Mq | 105 Mqc |
| Cantina - piano terra | 33 Mq | 8 Mqc |
| Giardino/Resede | 580 Mq | 29 Mqc |
| Totale | 142 Mqc | |
Vendesi l'appartamento in casa abbinata di soli due unità immobiliari con giardino. La casa è ubicata a San Vito comune di Rimini, a soli 3 km dal centro di Santarcangelo.
Alla casa si accede dal ampio cortile frontale che può ospitare comodamente il parcheggio auto.
Al piano terra troviamo un ampio ingresso e soggiorno, cucina abitabile, due camere matrimoniali e il bagno, al primo piano, un altra camera matrimoniale
Alla casa si accede dal ampio cortile frontale che può ospitare comodamente il parcheggio auto.
Al piano terra troviamo un ampio ingresso e soggiorno, cucina abitabile, due camere matrimoniali e il bagno, al primo piano, un altra camera matrimoniale
Richiedi maggiori informazioni
Mappa
Zoom della mappa
Apri con:
Apple Maps
Google Maps
Waze
Contattaci
Belpani Immobiliare
Via Flaminia, 80 47921 RIMINI (RN)
Via Flaminia, 80 47921 RIMINI (RN)
P.IVA: 03211420405
REA 282571
+39336916299
+393334566103





