Riccione Piscina Parco appartamento con giardino e garage
Tratt. riservata
zona Parco
Dettagli
Contratto Vendita
Rif RICC AUPSCI_450
Prezzo Tratt. riservata
Provincia Rimini
Comune Riccione
Zona Parco
Vani 3
Camere 2
Bagni 2
Classe energetica
A+ (DL 192/2005)
EPI 175 kwh/m2 anno
Riscaldamento autonomo
Condizioni ottime condizioni
Spese condominiali € 82
Anno di costruzione 2023
Arredato si
Ascensore si
Cucina angolo cottura
Consistenze
| Descrizione | Superficie | Sup. comm. |
|---|---|---|
| Principali | ||
| Immobile - piano terra | 80 Mq | 80 Mqc |
| Giardino/Resede | 35 Mq | 7 Mqc |
| Posto auto | 16 Mq | 5 Mqc |
| Box/Garage - piano interrato | 21 Mq | 10 Mqc |
| Totale | 102 Mqc | |
In una NUOVA COSTRUZIONE vendesi bellissimo appartamento in zona altamente servita adiacente ad un vasto parco cittadino.
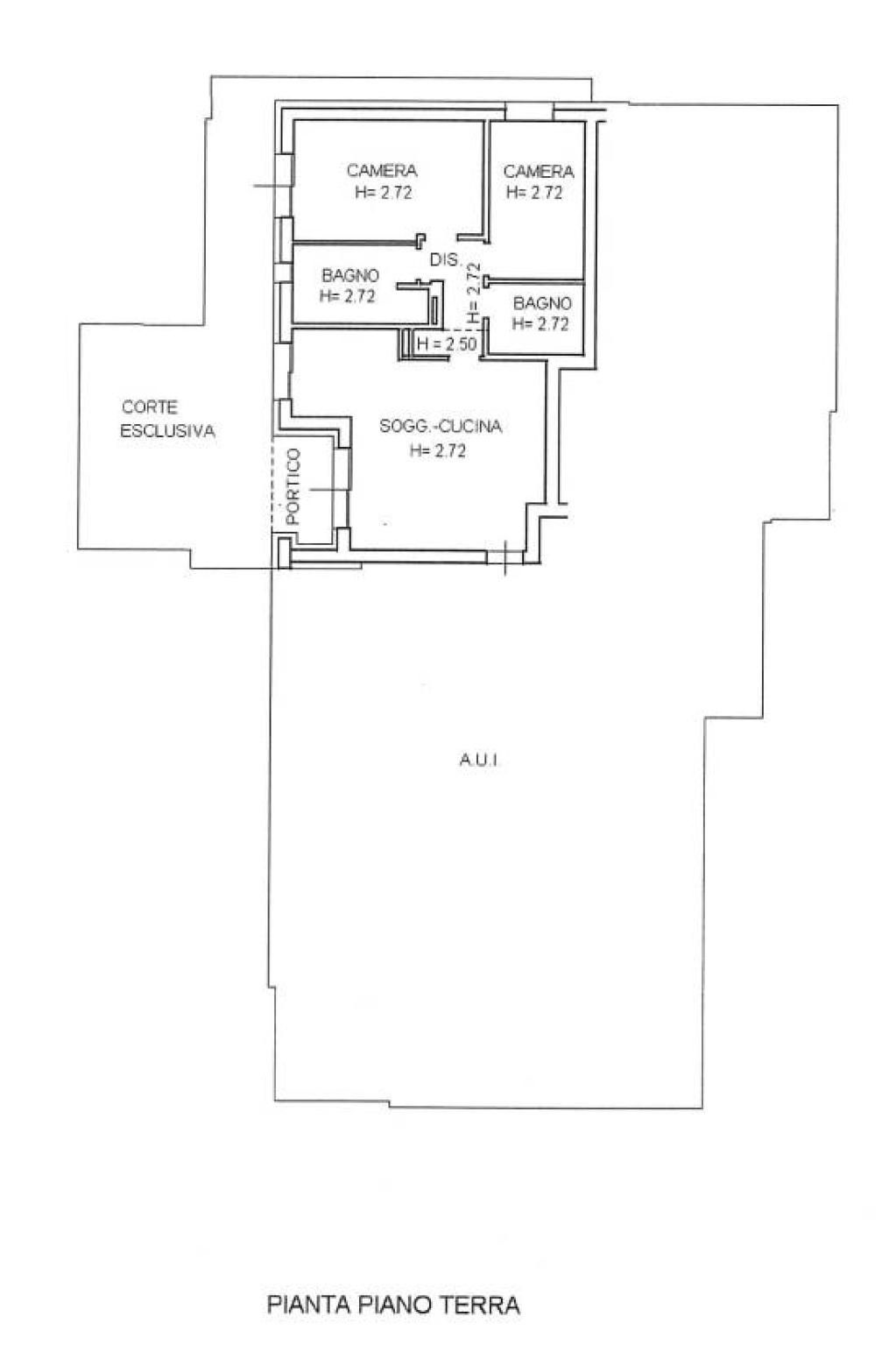
L'appartamento al piano terra: ingresso con ampio soggiorno e cucina a vista e con accesso diretto al giardino con veranda zona relax, camera matrimoniale, camera doppia e due bagni entrambi con box doccia.
Nel giardino con l'ingresso indipendente si trova anche un posto auto.
Nel piano interrato un ampio garage di 22 mq
Per vederlo o ulteriori informazioni CHIAMA Stefano Belpani al 336916299
L'appartamento al piano terra: ingresso con ampio soggiorno e cucina a vista e con accesso diretto al giardino con veranda zona relax, camera matrimoniale, camera doppia e due bagni entrambi con box doccia.
Nel giardino con l'ingresso indipendente si trova anche un posto auto.
Nel piano interrato un ampio garage di 22 mq
Per vederlo o ulteriori informazioni CHIAMA Stefano Belpani al 336916299
Video
Richiedi maggiori informazioni
Mappa
Zoom della mappa
Apri con:
Apple Maps
Google Maps
Waze
Contattaci
Belpani Immobiliare
Via Flaminia, 80 47921 RIMINI (RN)
Via Flaminia, 80 47921 RIMINI (RN)
P.IVA: 03211420405
REA 282571
+39336916299
+393334566103





